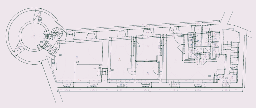
V rámci zámeckého areálu jsme provedli 3D laserové skenování historického domu s válcovou věží, který sloužil jako obydlí služebnictva. Objekt je cenný nejen svým architektonickým řešením, ale i historickým významem.
Pro přesnou dokumentaci jsme využili laserový skener, který zachytil i složité detaily v interiéru – klenby a skryté konstrukční prvky. Díky tomu jsme získali podrobný digitální model (mračno bodů), jenž slouží jako podklad pro rekonstrukci a další projektovou dokumentaci.
Doba skenování: téměř 5 hodin
Přesnost registrace mračna bodů: 0,8 mm
Výstupy: 2D výkresy půdorysů jednotlivých podlaží, mračno bodů
Výsledkem je dokumentace s vysokou úrovní detailu, která je klíčová pro pasportizaci, rekonstrukci a zachování historické hodnoty budovy.
Užíváme cookies, abychom vám zajistili co možná nejsnadnější použití našich webových stránek. Pokud budete nadále prohlížet naše stránky předpokládáme, že s použitím cookies souhlasíte.