Skip to main content
Hit enter to search or ESC to close
Close Search
Naskenujeme.cz
Menu
  • O nás
  • Výhody
  • Výstup dat
  • Projekty
  • Poptávka
  • Kontakt
  • Podpora EU
  • linkedin

3D laserové skenování domu Jihomoravský Kraj

3D laserové skenování domu Jihomoravský Kraj
3D laserové skenování domu Jihomoravský Kraj
3D laserové skenování domu Jihomoravský Kraj
3D laserové skenování domu Jihomoravský Kraj

3D laserové skenování domu Jihomoravský Kraj
3D laserové skenování domu Jihomoravský Kraj
3D laserové skenování domu Jihomoravský Kraj
3D laserové skenování domu Jihomoravský Kraj

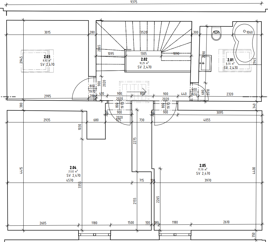
Majitelé tohoto domu potřebovali zpracovat pasport budovy, tedy přesné zachycení skutečného stavu nemovitosti. Pomocí 3D laserového skenování jsme vytvořili podklady pro 2D výkresovou dokumentaci a technické zprávy.

Skenování trvalo jedno dopoledne – exteriér jsme pořídili barevně, interiér v odstínech šedi. Výsledná přesnost registrace mračna bodů dosáhla hodnoty 0,6 mm, což zajišťuje maximální spolehlivost dat.

  • Čas skenování: půl dne

  • Čas zpracování mračna bodů (segmentace, odstranění odrazů a šumu): cca 2 dny

  • Přesnost mračna bodů: 0,6 mm

  • Výstupy: mračno bodů, 2D výkresová dokumentace, technické zprávy

Díky laserovému zaměření rodinného domu získal klient přesnou dokumentaci potřebnou pro rekonstrukci i budoucí projektové úpravy.

Share Tweet Share Pin

© 2026 Naskenujeme.cz.

Close Menu
  • O nás
  • Výhody
  • Výstup dat
  • Projekty
  • Poptávka
  • Kontakt
  • Podpora EU
  • linkedin
Užíváme cookies, abychom vám zajistili co možná nejsnadnější použití našich webových stránek. Pokud budete nadále prohlížet naše stránky předpokládáme, že s použitím cookies souhlasíte.